Ontwerp en bouw accukoffer

een compacte en degelijke oplossing voor praktisch probleem

Projectomschrijving

De opdracht tot ontwikkeling en bouw van deze accubank was onderdeel van een aanpassing om een bestaande elektrische installatie met accu’s, een omvormer en een 75pk elektrische buitenboord motor, te comprimeren, robust. uitwisselbaar en zeewaardig te krijgen. 

De grootste uitdaging van dit project was om een goede ballans te vinden tussen het eindgewicht, de mate van waterdichtheid, de stevigheid en de accubank toch compact zien te houden.

 

 

 

 

Specs:

Pelicase omhulsel

CNC gefreesde componenten

Water-gesneden componenten

AutoCad en Fusion 360 ontwerpen

 

 

 

Werkwijze

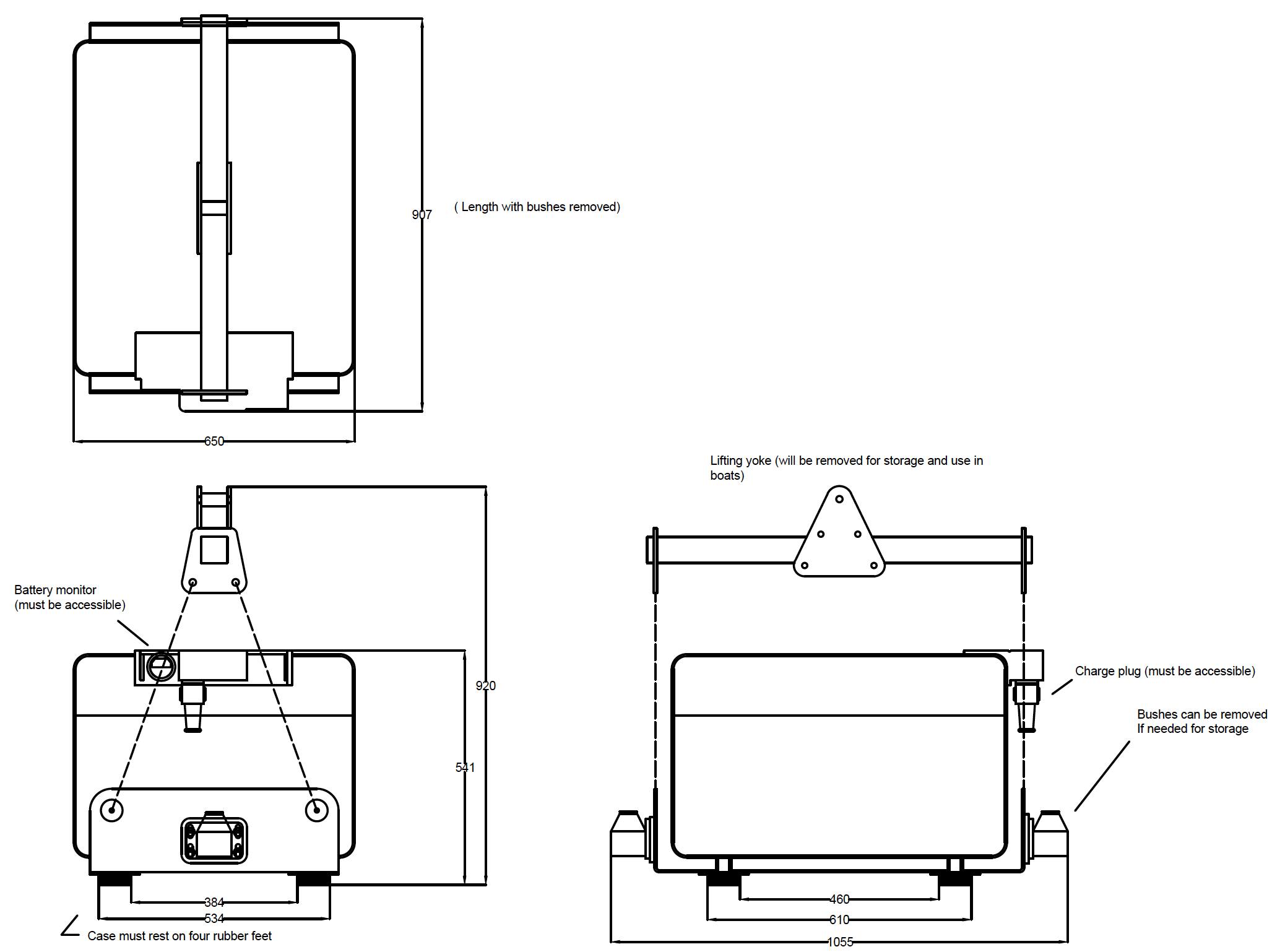
Eerst is een Peli-Case uitgezocht die plaats bood aan de 3 accu’s en de elektrische componenten. Er is voor een Peli-Case gekozen omdat deze UV bestendig zijn en een goede mate van waterdichtheid hebben

Ondanks de stevigheid van de Peli-Case zijn deze units niet gemaakt om veilig het gewicht van 135kg te kunnen dragen en transporteren. Er moest dus een uitwendig draag constructie gemaakt worden die door de koffer heen verbonden moest worden met een inwendige draag constructie zodat de koffer zelf geen gewicht draagt.

De inwendige draagconstructie draagt de accu’s die vervolgens met draadeinden door polycarbonaat platen vastgezet worden. Op deze platen worden waterdichte de installatiedozen vastgezet zodat het geheel een extra laag van bescherming heeft tegen eventueel indringend water.

Omdat de accukoffer gebruikt gaat worden in een kleine rubberboot, moet deze ook bestand zijn tegen het klimmen en klauteren over de koffer heen en een inwendig framewerk dat tussen het deksel van de koffer en de accu’s geplaatst wordt, zorgt hier voor voldoende stevigheid.

De opdracht vereiste dat er een manier gevonden moest worden om de accukoffer snel uitwisselbaar te maken en dit vereist een ‘dashboard’ waar behalve de accu monitor, ook enkele solide waterdichte stopcontacten voor de hoofd-, stuur- en laadstroom geïnstalleerd moesten worden om de kabels van de motor, die voorzien moesten worden van stekkers, in te kunnen steken.

 

 

 

Heb je een idee? Start je project vandaag nog

Loop je rond met het plan voor een eigen product of installatie?
Wil je je project voorzien van de juiste handleidingen en schema's?
Of heb je hulp nodig bij het visualiseren, ontwerpen of realiseren van jouw creatieve en/of technische project?